
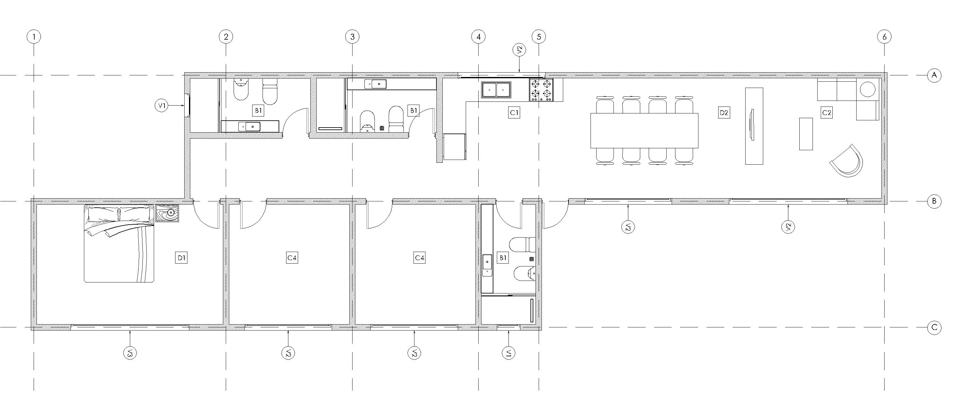
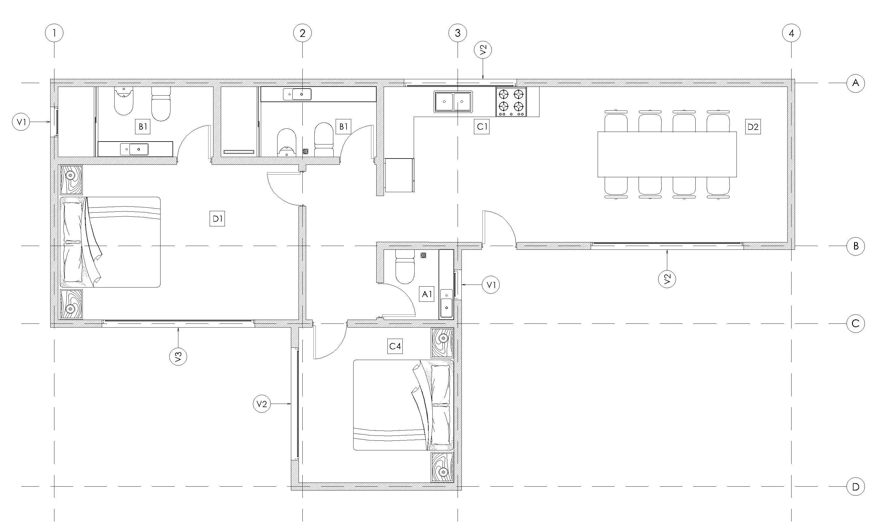
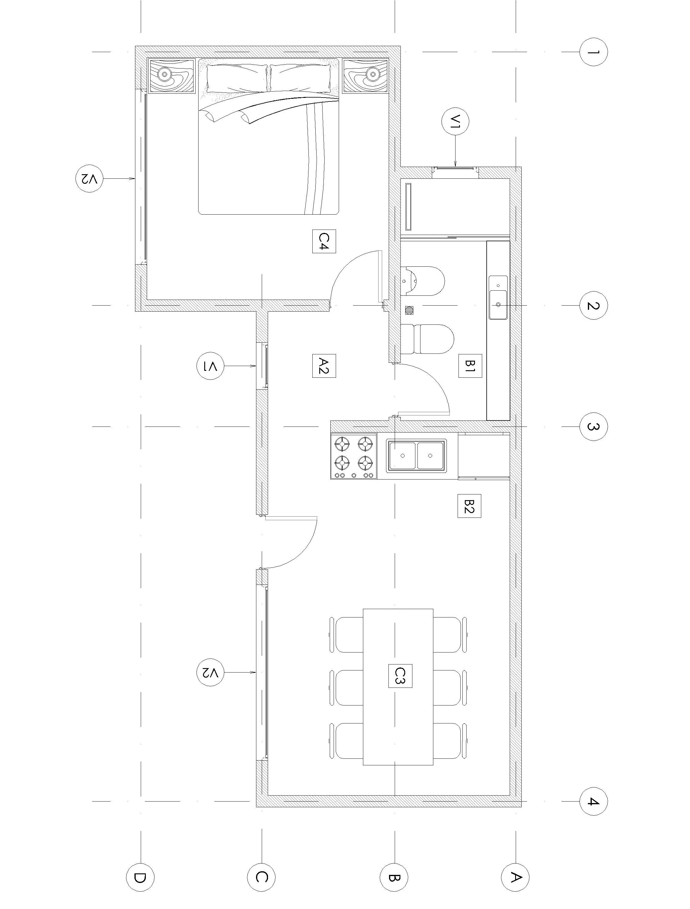
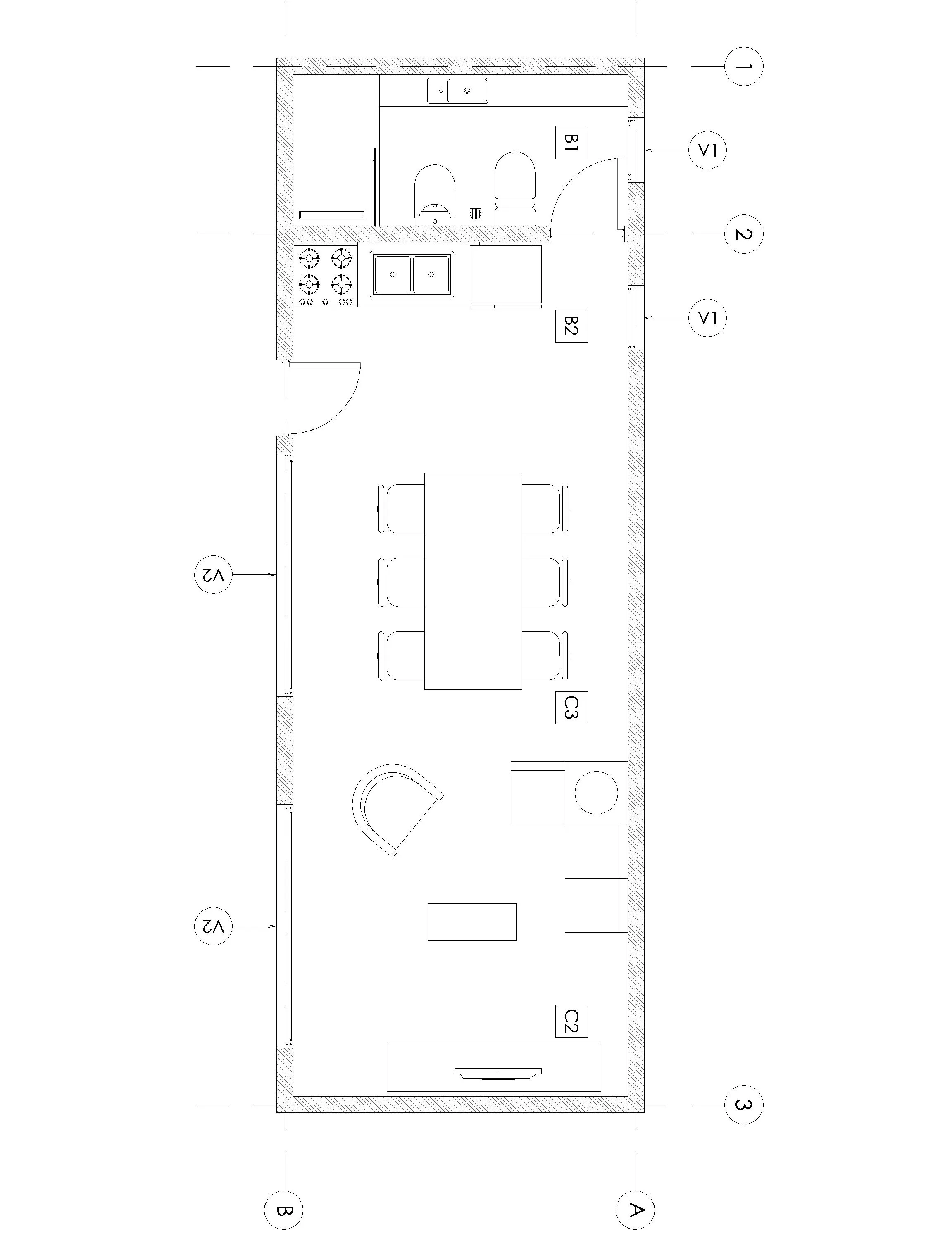
Modulares
Sistema constructivo modular, desarrollado 100% en fábrica, listo para ser transportado e instalado en el lugar de destino.
Las viviendas se entregan completamente terminadas, con instalaciones eléctricas, sanitarias, revestimientos, pintura, carpinterías, mobiliario y artefactos instalados.
El sistema está basado en estructura metálica de alta prestación, cerramientos en seco, y permite múltiples terminaciones exteriores: chapas nórdicas, siding, placas cementicias o revoques plásticos combinados con madera.
Es una solución ecoeficiente, sustentable y antisísmica, con posibilidad de incluir paneles solares y sistemas de recolección de agua de lluvia.
Los módulos van de 42 m² a 80 m² y pueden personalizarse a medida del cliente con diseño tailor made.
No especificada
No especificado
Modulares
No especificada
Este proyecto refleja nuestra filosofía de diseño, combinando estética y funcionalidad para crear espacios que se adaptan perfectamente a las necesidades de nuestros clientes.








